Od 18 maja 2023 r. do 09 czerwca 2023 r. można zapoznać się z projektem miejscowego planu zagospodarowania przestrzennego Osiedle Wołominek w Wołominie – część H wraz z prognozą oddziaływania na środowisko.
Projekt miejscowego planu jest dostępny:
– w plikach do pobrania na końcu wpisu,
– w Biuletynie Informacji Publicznej Gminy Wołomin (link)
– w Urzędzie Miejskim w Wołominie, pokój 212 (w godzinach pracy Urzędu),
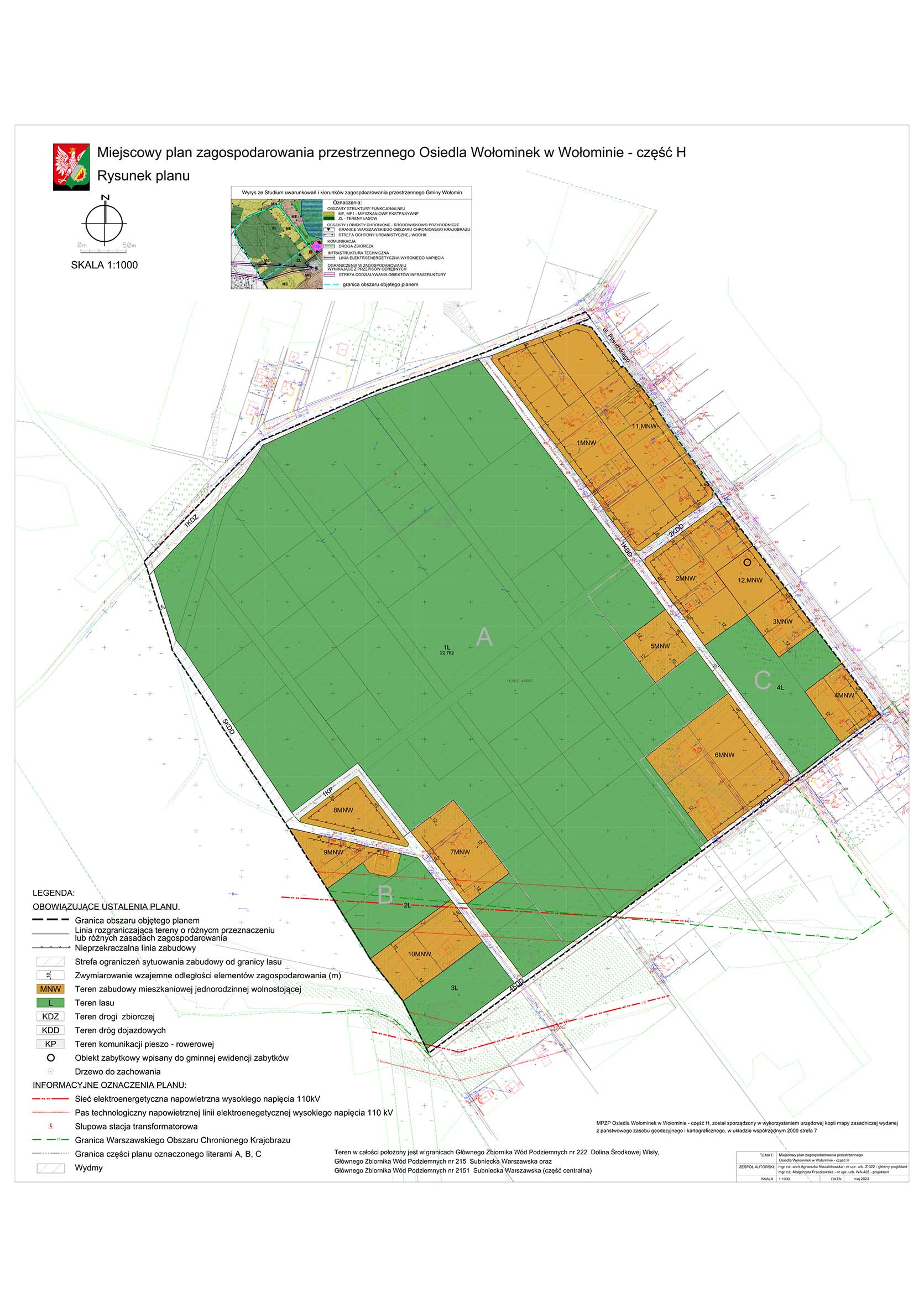
– w Systemie Informacji Przestrzennej https://wolomin.e-mapa.net/ w zakładce Zagospodarowanie przestrzenne → Projekty planów – wyłożenie
Dyskusja publiczna nad rozwiązaniami przyjętymi w wyłożonym projekcie miejscowego planu zagospodarowania przestrzennego odbędzie się w dniu 24 maja 2023 r. (środa) o godz. 17.00 w sali konferencyjnej 106, I piętro.
Uwagi do ww. projektu miejscowego planu zagospodarowania przestrzennego wraz z prognozą oddziaływania na środowisko można składać do 23 czerwca 2023 r. (włącznie).
Uwagi do projektu planu zagospodarowania przestrzennego należy składać do Burmistrza Wołomina. Uwagi mogą być wnoszone:
– w formie papierowej: przesłane pocztą lub doręczone osobiście na adres: Urząd Miejski w Wołominie, ul. Ogrodowa 4, 05-200 Wołomin;
– elektronicznej, w tym za pomocą środków komunikacji elektronicznej (poczty elektronicznej) bez konieczności opatrywania ich kwalifikowanym podpisem elektronicznym na adres: um@wolomin.org.pl lub poprzez platformę ePUAP,
– podczas dyskusji publicznej.
Szczegółowe informacje dot. wyłożenia publicznego i składania uwag znajdują się w obwieszczeniu, dostępnym poniżej. Informacji udzielają też pracownicy Wydziału Urbanistyki Urzędu Miejskiego w Wołominie (tel. 22 763 30 45), pokój 212.
Pliki do pobrania (kliknij na link, żeby rozpocząć jego pobieranie):
• obwieszczenie (link)
• projekt planu miejscowego tekst – (.PDF)
• projekt planu miejscowego rysunek –(.PDF)
• prognoza środowiskowa tekst– (.PDF)

Więcej informacji z Wołomina
Na królewskich polach Wołomina – gdzie rodzą się mistrzowie – Turniej Szachowy o Puchar Burmistrza Wołomina Elżbiety Radwan Wołomin, 25–26 kwietnia 2026 r.
„Kobra” likwiduje kolejną dziuplę samochodową w powiecie wołomińskim, po 20 zarzutów paserstwa pojazdów dla 2 zatrzymanych
Tydzień Bibliotek w Wołominie. Książki, spotkania i twórcza energia – biblioteka zaprasza mieszkańców
Książki wyszły do ludzi! Wyjątkowa akcja wołomińskiej biblioteki z okazji Światowego Dnia Książki
